Bài toán hóc búa lâu nay là làm thế nào để phân loại rác, hướng dẫn thực hiện ra sao, phải chứa đựng rác thải bằng cái gì, việc thu gom và vận chuyển rác vào thời điểm nào cho thích hợp, phương pháp xử lý rác như thế nào? Những vấn đề bức xúc này khiến cho người dân và lãnh đạo TPHCM trăn trở, thể hiện qua nhiều năm triển khai các chương trình, tìm kiếm ý tưởng!
 Ảnh minh họa thùng rác T.R.T
 Ảnh minh họa thùng rác T.R.T 
Thùng rác ký hiệu: T.R.T (đính kèm mẫu logo gắn trên thùng). Trong đó, mẫu logo là vòng tròn (màu xanh) ø6cm, thể hiện môi trường trong lành, ấm áp. Ký hiệu T, R, T và chữ số 2020 có ý nghĩa như sau:
Chữ T: viết tắt từ đầu chữ “thùng”
Chữ R: viết tắt từ đầu chữ “rác”
Chữ T: viết tắt từ đầu chữ “thải”
Hai chữ T như hình với bóng, quyện chặt hợp thành một mái nhà (hộ dân)
Số 2020: là năm Luật bảo vệ môi trường ra đời.
Về hình thức, vòng tròn viền, và số (màu trắng) được khắc nổi; phần còn lại chạm khuyết chìm sơn màu.
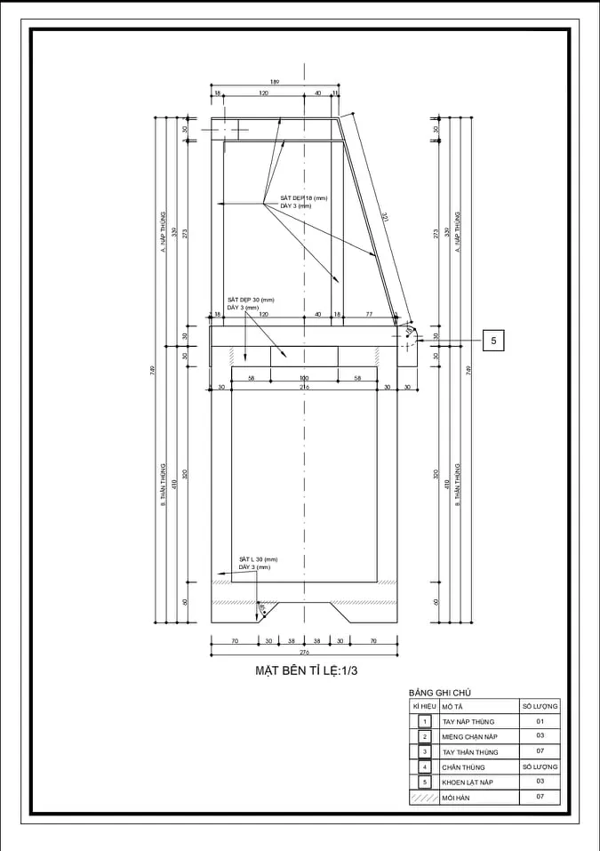
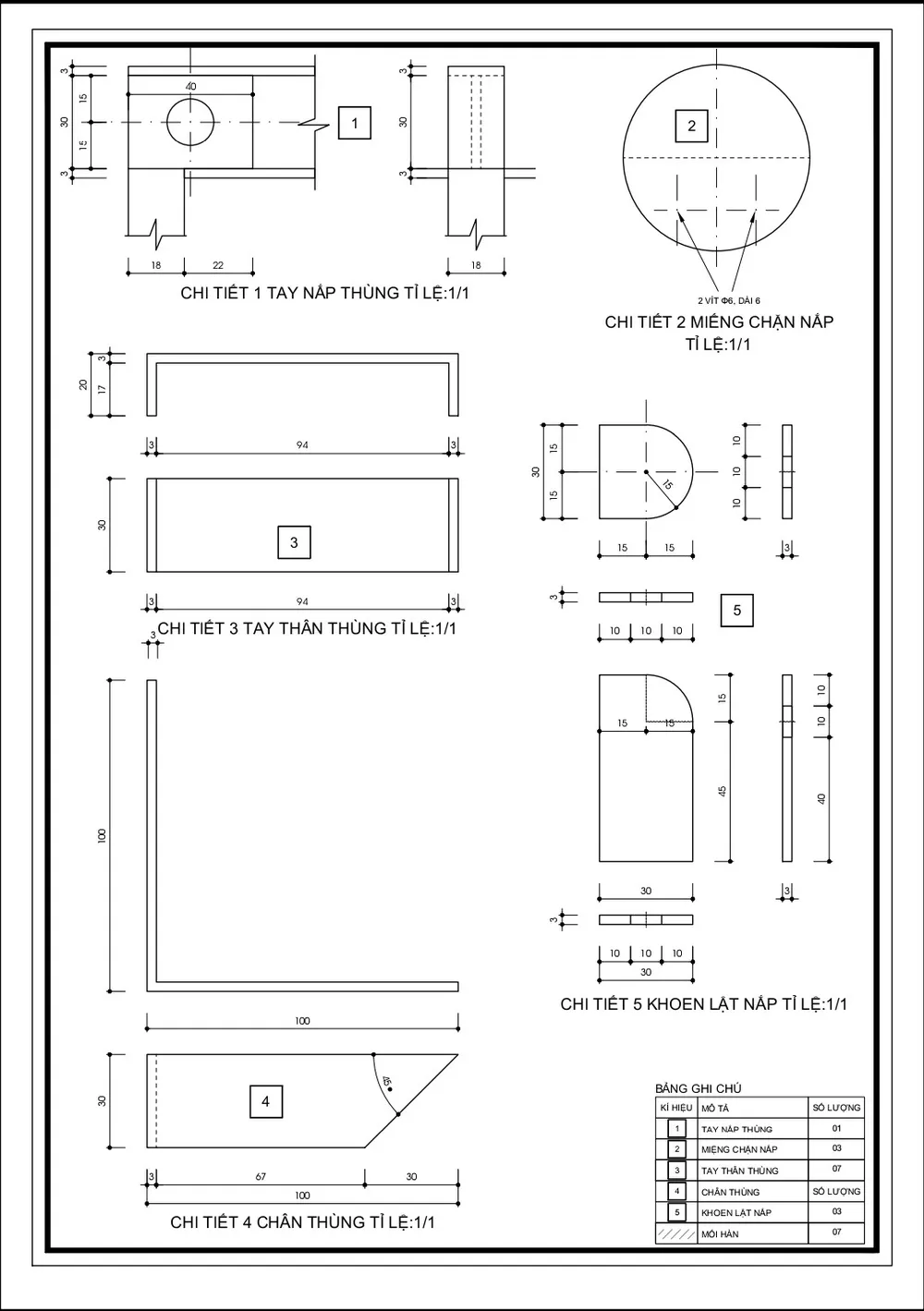
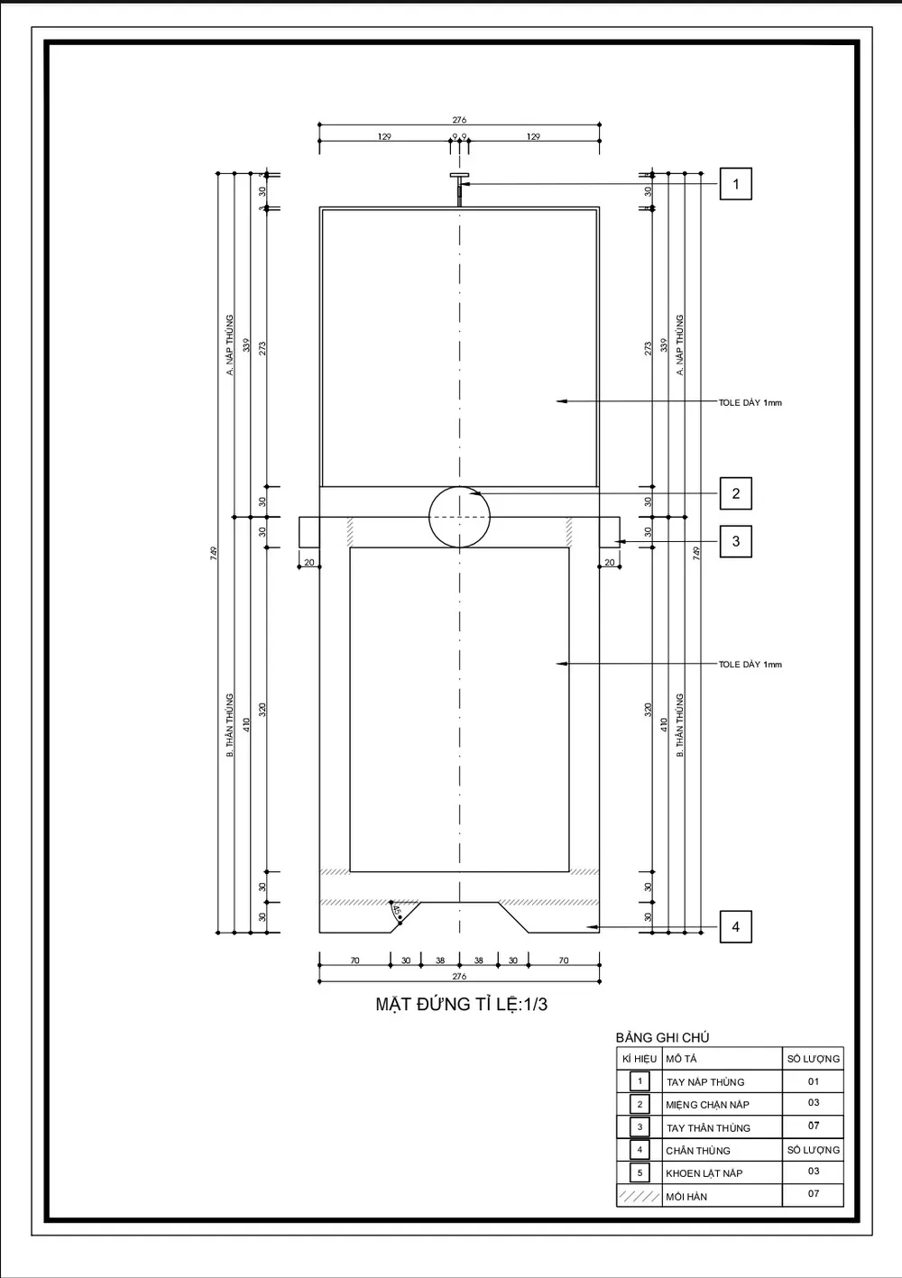
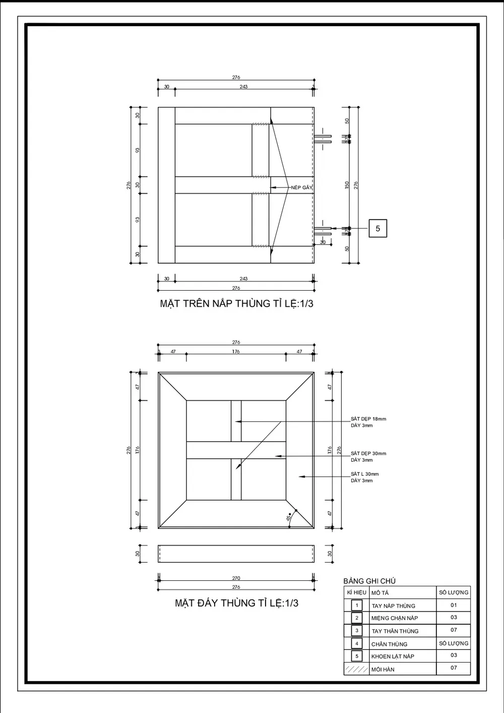
Cấu tạo thùng rác là sắt và tole. Nguyên nhân, tôi thấy thực tế các thùng rác bằng nhựa lắp đặt dọc đường hoặc các khu nhà thường bị gãy, vỡ, rác thải văng tung tóe ra ngoài, nên chọn vật liệu chắc chắn hơn. Cũng trong bảng vẽ, kích thước như vậy sẽ phù hợp với nhà dân, nhưng nếu những nơi công cộng, trường học, bệnh viện có thể thay đổi cho phù hợp. Đối với việc phân loại rác, sẽ chọn 2 loại màu khác nhau dành cho rác vô cơ và hữu cơ. Đặc biệt, tôi thấy thùng rác bán ở các chợ hoặc siêu thị khá đắt, do đó thùng rác này nên do công ty thu gom rác cung cấp miễn phí cho người dân.
Hy vọng đề tài thiết kế thùng rác phân loại rác tại nguồn sẽ tạo nên sự riêng biệt, đồng bộ màu sắc, đem lại mỹ quan cho khu phố, xóm, hẻm trong việc thu gom rác thải sinh hoạt sạch đẹp, văn minh, khoa học. Nếu mẫu thiết kế này được chọn tôi sẽ có những đóng góp thiết thực hơn.
 
 
 
 
 
 
 
 
 
 
 
 
 
 
 
 
 
 
 
 
 
 
 
 
 
 
 
 
 
 
 
 
 
 
 
 
 
 
 
 
 
 
 
 
 
 
 
 
 
 
 
 
 
 
 
 
 
